0721-70 80 99

Moderna och hållbara  hyresrätter med hög kvalitét och garage på bästa läge  i Stationsstaden

Inflytt november 2025

Vi på ER-HO Bygg AB är stolta att kunna erbjuda högkvalitativa och moderna hyresrätter med garage på Varmröken 1 i Stationsstaden - Kävlinge

ER-HO Bygg strävar efter att skapa hållbara och trivsamma hyresrätter för alla livsstadier. Vi fokuserar på att utveckla hyresrätter där människor verkligen kan känna sig hemma, med närhet till natur, kollektivtrafik och service. Vårt mål är att erbjuda högkvalitativa och genomtänkta hyresrätter som skapar en trygg och bekväm vardag för våra hyresgäster. Hos oss på ER-HO Bygg välkomnar vi dig till modernt och bekymmersfritt boende, där funktion möter stil.

white and brown wooden kitchen cabinet

Hyresrätter i Stationsstaden i Kävlinge

I Kävlinges nyaste stadsdel, Stationsstaden som ligger mitt i centrala Kävlinge med några minuters promenad till järnvägsstationen utvecklar ER-HO Bygg AB hyresrätter som är utformade med både stil och funktion i fokus men även för hållbar stadsutveckling. Här finner du ljusa, välplanerade lägenheter med generösa balkonger som skapar en rymlig och hemtrevlig atmosfär med möjlighet till att hyra garageplats. Vi har olika storlekar och planlösningar för att passa just dina behov – oavsett om du är ensam, par eller har familj.

Boendet i Stationsstaden erbjuder också en bekväm vardag med närhet till kollektivtrafik, butiker, förskolor, skolor och service med b.la. Coop, apotek, badhus, gym, kommunhus och bibliotek, restauranger mm. Med närhet till grönområden, härliga promenadstråk och cykelvägar är det en plats där du kan trivas året runt.

Flytta till ett hem som erbjuder både kvalitet och komfort i Kävlinges nyaste och modernaste stadsdel.

Välkommen att kontakta oss för mer information och boka en visning!

Vardagsrummetljus och plats för umgänge

Våra vardagsrum är designade för att bli en stilren och inbjudande plats där du kan koppla av och umgås. Med höga takhöjder, stora fönsterpartier och noggrant utvalda material får rummet en rymlig och ljus atmosfär som passar för både vardagsliv och festliga tillfällen. Här finns det gott om plats för både soffgrupp och matbord, vilket gör det enkelt att skapa den perfekta miljön för dina behov. Med en balans mellan modern design och klassiska detaljer erbjuder vi vardagsrum som ger en känsla av kvalitet och lyx – en plats att kalla hemma.

 Badrum - hög funktionalitet med lyxkänsla

Våra badrum är en harmonisk oas där lyx och funktion möts för att ge dig en avslappnande upplevelse varje dag. Med material av högsta kvalitet, eleganta detaljer och modern belysning skapar vi en atmosfär som känns både exklusiv och rogivande. Här hittar du rymliga duschar, stilrena handfat och smakfullt designade förvaringslösningar som håller badrummet prydligt och organiserat. Väl genomtänkta ytskikt och högkvalitativa blandare gör rummet både lättskött och hållbart. Våra badrum är designade för att ge dig en plats att varva ner i – ett utrymme som kombinerar modern estetik med praktiska detaljer för din dagliga komfort.

Köket - hemmets hjärta med alla bekvämligheter

Här möter funktion stil i en perfekt balans! Våra kök är utformade med högsta kvalitet i åtanke för att ge en matlagningsupplevelse utöver det vanliga. Med exklusiva materialval, moderna vitvaror och genomtänkta lösningar får du ett kök som är både hållbart och estetiskt tilltalande. Här finns gott om arbetsytor för att inspirera kreativ matlagning, och smarta förvaringslösningar som gör köket praktiskt och lätt att hålla organiserat. I våra kök möts tidlös design och modern teknik för att skapa en plats där du kan laga, umgås och njuta varje dag.

Projektinformation

  • Antal lägenheter: 79
  • Antal byggnader/ huskroppar: 2
  • Storlekar: 42,1 - 86,1 kvm
  • Rum: 1 - 4 r.o.k.
  • Våningsplan: 1 - 5
  • Hyra: Enligt lägenhetsförteckning nedan
  • Adresser: Enligt lägenhetsförteckning nedan
  • Inflyttningsstart: November 2025
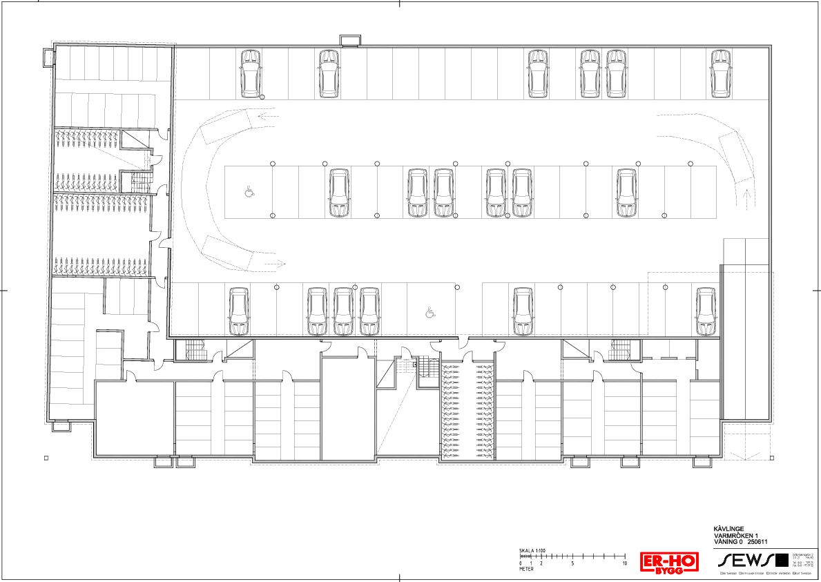
  • Parkering: 56 garageplatser i källare (mot avgift - administreras av APCOA Parkering) 875 kr per månad för en p-plats eller 1100 kr per månad för en laddplats (elförbrukning ingår ej utan debiteras separat nästkommande månad)
  • Ansvariga uthyrare: Åse Hofmann och Emy Hofmann

Lägenhetsbeskrivning

Lägenheterna är uppförda med omsorgsfullt valda och högkvalitativa material i både ytskikt och inredning. När du kliver in i lägenheterna möts du av en välkommande hall med ett klinkergolv i grå kulör och vitpigmenterad ekparkett samt en hatthylla och garderober för bra förvaring. Från hallen tar du dig sedan vidare in i lägenhetens olika rum. De ljusa väggarna och vitpigmenterade ekparketten skapar ljus och rymd samtidigt som det ger dig möjlighet att sätta din egen inredningsstil. Det fullutrustade köket är inrett i en ljus skandinavisk kulör med ljusgrått kakel som stänkskydd och grå bänkskiva. Här blir det enkelt att tillaga favoriträtterna med bra förvaring och funktionella arbetsytor. Köket är utrustat med diskmaskin, mikrovågsugn, spis, ugn, kyl och frys. Det fina badrummet är helkaklat med ljusgrått kakel och klinker på golv och väggar. Det är funktionellt utrustat med vikbara duschväggar i glas och handdukstork. Det finns även tvättmaskin och torktumlare vilket gör att du kan tvätta på den tid som passar dig. Särskilt kännetecknande för lägenheterna är den öppna planlösningen mellan kök och vardagsrum, väl tilltagna fönster med bra ljusinsläpp. Det finns gott om garderober som erbjuder goda möjligheter till förvaring. Till lägenheterna ingår det även ett lägenhetsförråd i källare. En väl tilltagen balkong erbjuder varma och sköna stunder. Det finns även möjligheter att hyra en parkeringsplats i garaget som ligger i källaren. Uthyrning av garageplatser administreras av APCOA Parkering.

Krav för lägenhetsuthyrning

  1. För att kunna teckna hyreskontrakt måste du fyllt 18 år.

  2. Fast inkomst ska kunna styrkas genom att inkomma med ett arbetsgivarintyg (ej anställningsavtal). Månadsinkomsten (före skatt) ska vara minst tre (3) gånger månadshyran. Som inkomst räknas förvärvsinkomst, inkomst av kapital samt pension. Ex månadsinkomst (före skatt) på 25 000 kronor = maximal hyra på ca 8 250 kronor per månad.

  3. I samband med inflytt ska hyresgästen erlägga tre (3) månadshyror i deposition.

  4. Kreditupplysning genomförs alltid innan visning av lägenheten och betalningsanmärkningar accepteras ej.

  5. Sökande ska visa god hyressed, genom att inte vara föremål för anmälningar gällande störande beteende eller misskött bostad. Med anledning av detta ska referens på uppmaning av hyresvärden kunna inhämtas från tidigare boende, referens äldre än två år godkänns ej.

  6. Antalet personer som ska bo i lägenheten ska vara rimligt i förhållande till lägenhetens storlek och dess planlösning, därav får max 2 personer per sovrum per lägenhet.

  7. Hyresgästen ska innan inflyttning uppvisa dokumentation på inbetald hemförsäkring. Det ska under hela hyrestiden finnas en gällande hemförsäkring.

  8. Hyresvärden förbehåller sig alltid rätten att välja hyresgäst.

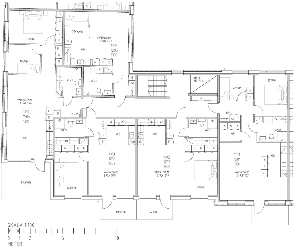
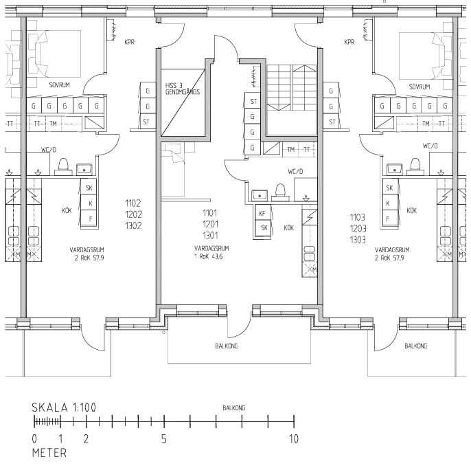
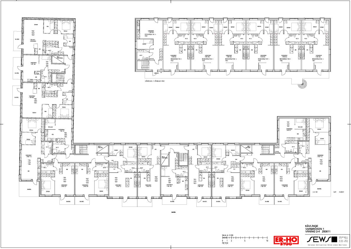
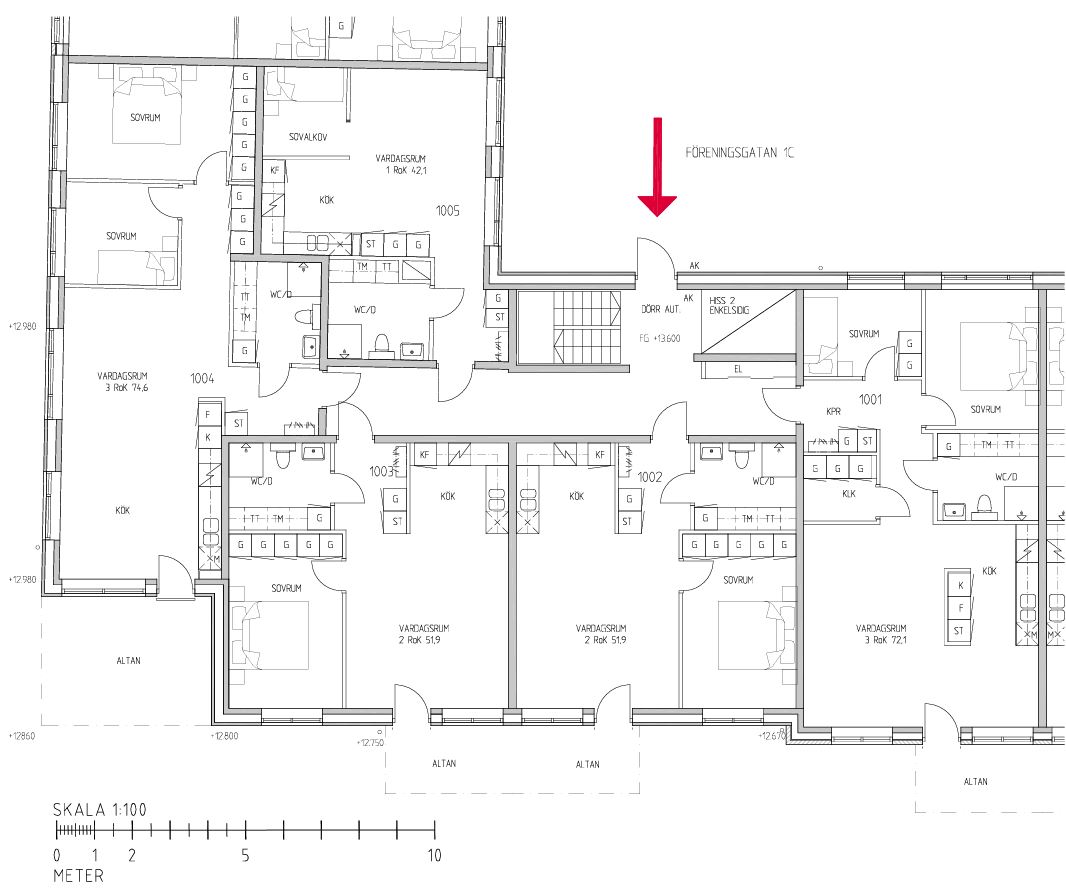
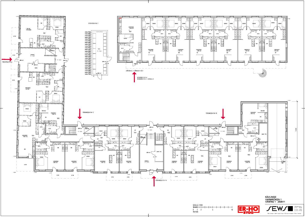
Ritningar

Nedan finner ni följande ritningar (ej skalenliga):

Garage/ källare

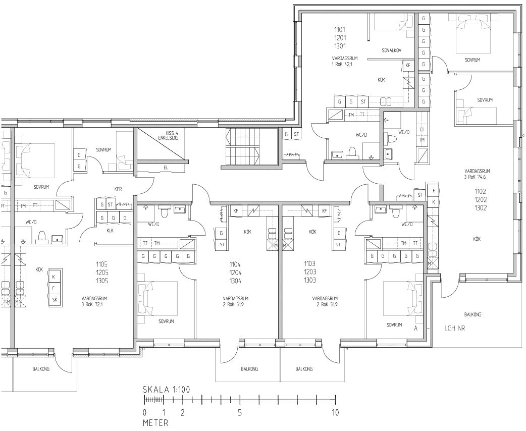
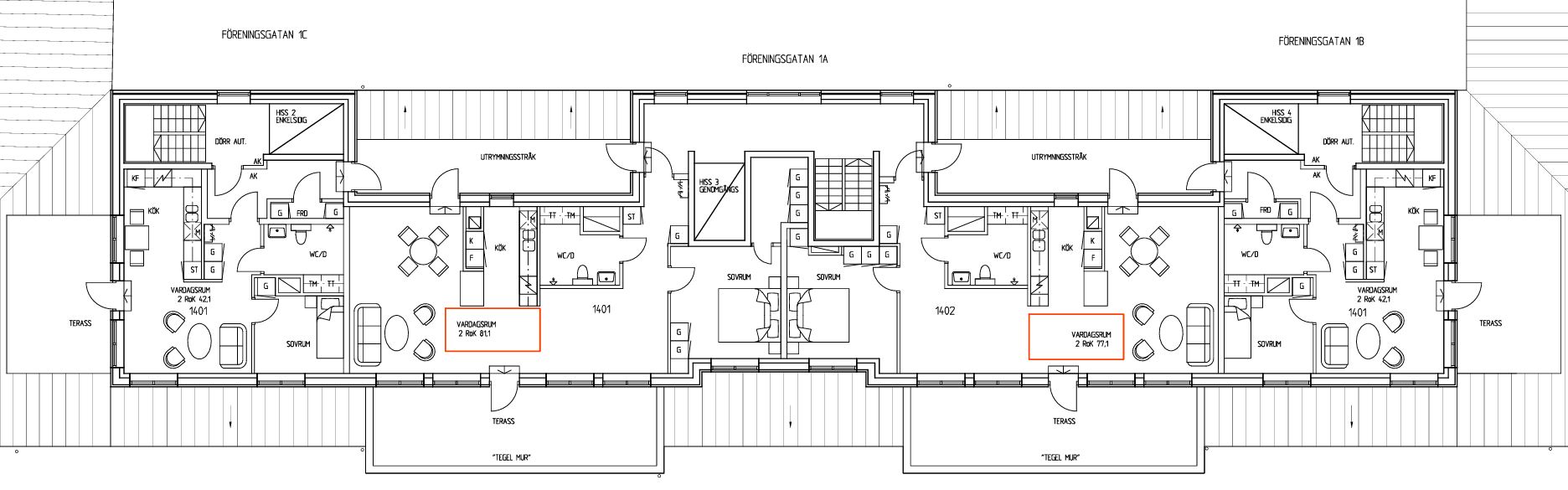
Lägenhetsritningar

Markritning 

Digital rundvandring

Rundvandring i en 3:a på 74,6 kvm filmat från aktuellt projekt.
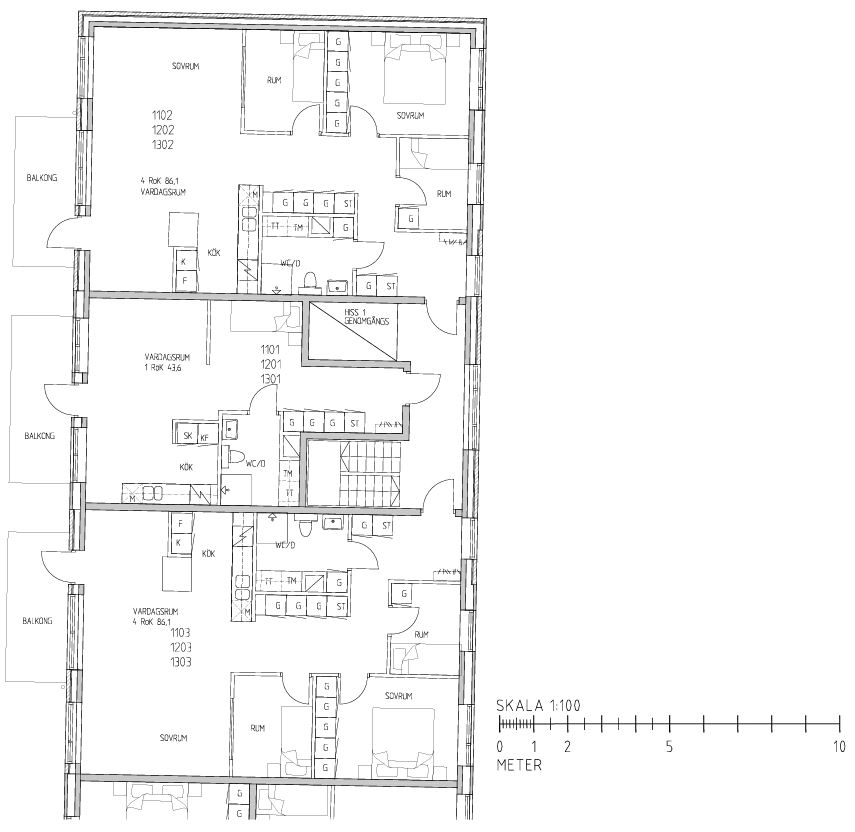
Lägenhet 1302 (vån 4) Fridhemsgatan 1 B (trapphus 4).

Lägenhetshyror

Nedan redogörs hyran (2026) för respektive lägenhet. I hyran ingår värme, vatten- och avlopp samt 1 st. lägenhetsförråd i källare.
Hyresgästen bekostar hushållsel, bredband/ tv (fiber är indragit till respektive lägenhet) samt eventuell parkeringsplats i garage.


Fridhemsgatan 6 (Trapphus 1)
Lägenhetsnr.

Våning - Antal RoK - Ca kvm

Månadshyra
1001

Vån 1  -  4 RoK  -  86,1 kvm

UTHYRD

1002

Vån 1  -  4 RoK  -  86,1 kvm

UTHYRD

1101

Vån 2  -  1 RoK  -  43,6 kvm

UTHYRD

1102

Vån 2  -  4 RoK  -  86,1 kvm

UTHYRD

1103

Vån 2  -  4 RoK  -  86,1 kvm

UTHYRD

1201

Vån 3  -  1 RoK  -  43,6 kvm

UTHYRD

1202

Vån 3  -  4 RoK  -  86,1 kvm

UTHYRD

1203

Vån 3  -  4 RoK  -  86,1 kvm

UTHYRD

1301

Vån 4  -  1 RoK  -  43,6 kvm

UTHYRD

1302

Vån 4  -  4 RoK  -  86,1 kvm

UTHYRD

1303

Vån 4  -  4 RoK  -  86,1 kvm

UTHYRD

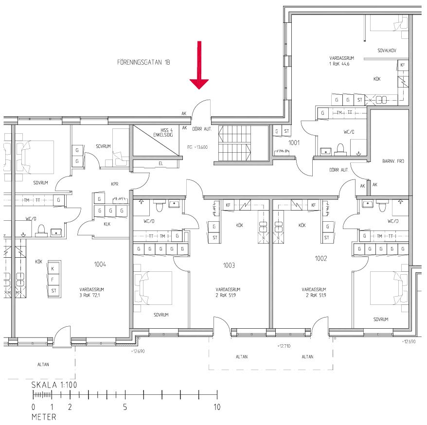
Föreningsgatan 1 C (Trapphus 2)
Lägenhetsnr.

Våning - Antal RoK - Ca kvm

Månadshyra
1001

Vån 1  -  3 RoK  -  72,1 kvm

UTHYRD

1002

Vån 1  -  2 RoK  -  51,9 kvm

UTHYRD

1003

Vån 1  -  2 RoK  -  51,9 kvm

UTHYRD

1004

Vån 1  -  3 RoK  -  74,6 kvm

UTHYRD

1005

Vån 1  -  1 RoK  -  42,1 kvm

7 502

1101

Vån 2  -  3 RoK  -  72,1 kvm

UTHYRD

1102

Vån 2  -  2 RoK  -  51,9 kvm

UTHYRD

1103

Vån 2  -  2 RoK  -  51,9 kvm

UTHYRD

1104

Vån 2  -  3 RoK  -  74,6 kvm

UTHYRD

1105

Vån 2  -  1 RoK  -  42,1 kvm

7 556

1201

Vån 3  -  3 RoK  -  72,1 kvm

UTHYRD

1202

Vån 3  -  2 RoK  -  51,9 kvm

UTHYRD

1203

Vån 3  -  2 RoK  -  51,9 kvm

UTHYRD

1204

Vån 3  -  3 RoK  -  74,6 kvm

UTHYRD

1205

Vån 3  -  1 RoK  -  42,1 kvm

UTHYRD

1301

Vån 4  -  3 RoK  -  72,1 kvm

UTHYRD

1302

Vån 4  -  2 RoK  -  51,9 kvm

UTHYRD

1303

Vån 4  -  2 RoK  -  51,9 kvm

 UTHYRD

1304

Vån 4  -  3 RoK  -  74,6 kvm

UTHYRD

1305

Vån 4  -  1 RoK  -  42,1 kvm

UTHYRD

1401

Vån 5  -  2 RoK  -  42,1 kvm

UTHYRD

Föreningsgatan 1 A (Trapphus 3)
Lägenhetsnr.

Våning - Antal RoK - Ca kvm

Månadshyra
1001

Vån 1  -  2 RoK  -  57,9 kvm

UTHYRD

1002

Vån 1  -  2 RoK  -  57,9 kvm

UTHYRD

1101

Vån 2  -  1 RoK  -  43,6 kvm

UTHYRD

1102

Vån 2  -  2 RoK  -  57,9 kvm

UTHYRD

1103

Vån 2  -  2 RoK  -  57,9 kvm

UTHYRD

1201

Vån 3  -  1 RoK  -  43,6 kvm

UTHYRD

1202

Vån 3  -  2 RoK  -  57,9 kvm

UTHYRD

1203

Vån 3  -  2 RoK  -  57,9 kvm

UTHYRD

1301

Vån 4  -  1 RoK  -  43,6 kvm

UTHYRD

1302

Vån 4  -  2 RoK  -  57,9 kvm

UTHYRD

1303

Vån 4  -  2 RoK  -  57,9 kvm

UTHYRD

1401

Vån 5  -  2 RoK  -  81,1 kvm

UTHYRD

1402

Vån 5  -  2 RoK  -  77,1 kvm

UTHYRD

Föreningsgatan 1 B (Trapphus 4)
Lägenhetsnr.

Våning - Antal RoK - Ca kvm

Månadshyra
1001

Vån 1  -  1 RoK  -  44,6 kvm

UTHYRD

1002

Vån 1  -  2 RoK  -  51,9 kvm

UTHYRD

1003

Vån 1  -  2 RoK  -  51,9 kvm

UTHYRD

1004

Vån 1  -  3 RoK  -  72,1 kvm

UTHYRD

1101

Vån 2  -  1 RoK  -  42,1 kvm

UTHYRD

1102

Vån 2  -  3 RoK  -  74,6 kvm

UTHYRD

1103

Vån 2  -  2 RoK  -  51,9 kvm

UTHYRD

1104

Vån 2  -  2 RoK  -  51,9 kvm

UTHYRD

1105

Vån 2  -  3 RoK  -  72,1 kvm

UTHYRD

1201

Vån 3  -  1 RoK  -  42,1 kvm

UTHYRD

1202

Vån 3  -  3 RoK  -  74,6 kvm

UTHYRD

1203

Vån 3  -  2 RoK  -  51,9 kvm

UTHYRD

1204

Vån 3  -  2 RoK  -  51,9 kvm

UTHYRD

1205

Vån 3  -  3 RoK  -  72,1 kvm

UTHYRD

1301

Vån 4  -  1 RoK  -  42,1 kvm

UTHYRD

1302

Vån 4  -  3 RoK  -  74,6 kvm

UTHYRD

1303

Vån 4  -  2 RoK  -  51,9 kvm

UTHYRD

1304

Vån 4  -  2 RoK  -  51,9 kvm

UTHYRD

1305

Vån 4  -  3 RoK  -  72,1 kvm

UTHYRD

1401

Vån 5  -  2 RoK  -  42,1 kvm

UTHYRD

Resenärsgatan 4 + 6 (Gårdshus)
Lägenhetsnr.

Våning - Antal RoK - Ca kvm

Månadshyra
4 (1001)

Vån 1  -  2 RoK  -  50,7 kvm

UTHYRD

6A

Vån 1  -  3 RoK  -  66,4 kvm

UTHYRD

6B

Vån 1  -  3 RoK  -  66,4 kvm

UTHYRD

6C

Vån 1  -  3 RoK  -  66,4 kvm

UTHYRD

6D

Vån 1  -  3 RoK  -  66,4 kvm

UTHYRD

6E

Vån 1  -  3 RoK  -  66,4 kvm

UTHYRD

6F

Vån 1  -  3 RoK  -  66,4 kvm

UTHYRD

4 (1101)

Vån 2  -  2 RoK  -  50,7 kvm

UTHYRD

4 (1102)

Vån 2  -  3 RoK  -  66,4 kvm

UTHYRD

4 (1103)

Vån 2  -  3 RoK  -  66,4 kvm

UTHYRD

4 (1104)

Vån 2  -  3 RoK  -  66,4 kvm

UTHYRD

4 (1105)

Vån 2  -  3 RoK  -  66,4 kvm

UTHYRD

4 (1106)

Vån 2  -  3 RoK  -  66,4 kvm

UTHYRD

4 (1107)

Vån 2  -  3 RoK  -  66,4 kvm

UTHYRD

Formulär för intresseanmälan

I rutan "Meddelande" nedan anger ni vilken adress och vilken/ vilka lägenhetsnummer som ni önskar anmäla intresse till. 
Ex på meddelande: Fridhemsvägen 6 lgh 1101 och 1201.
Namn E-post Telefon Meddelande Jag ger mitt samtycket till insamling av uppgifterna ovan. Skicka in

Kontaktuppgifter 

Fyll i formuläret för intresseanmälan till höger för att få mer information om våra moderna hyresrätter.
PERSONUPPGIFTSPOLICY FÖR HYRESGÄSTER

Klicka på knappen nedan för att ta del av Er-HO Huset 24 AB:s personuppgiftspolicy för hyresgäster

Hitta ditt moderna drömhem idag!

Upptäck våra hållbara och bekväma hyresrätter som kombinerar stil och funktion.
Klicka nedan för att hitta ditt perfekta hem hos oss på ER-HO Bygg AB.